Sanitation for Vista Hermosa, Santa Lucia Utatlan
“More Water, More Wastewater; Deal with It”
The Rotary Club of Lake Atitlan (host) and the Rotary Club of Annapolis, MD donor) have begun GlobalGrant GG2570516 to help Vita Hermosa rehabilitate their potable water system. Over 30 homes have not received piped water for over a decade. The Global Grant will provide sustainable, potable water to every home in the village and the regional school sectors. The increased water will produce the same amount of wastewater. Already, wastewater and runoff are forming a small contaminated stream that enters where most of the community currently collects their water.

This video (https://studio.youtube.com/video/J2u2mmcZ3gU/) shows the current stream of wastewater and runoff that flows directly to the clearing where the community will dig their well for their new water system.
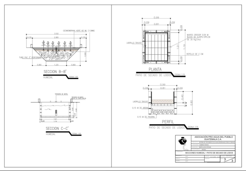
This Global Grant will ensure that every home has a functioning, sustainable “VIP” latrine or is linked to a mini-wastewater treatment (MWWTP). Agua del Pueblo (AdP) designed MWWTPs to connect all the grey and black wastewater from up to ten families. The water passes through a grease trap to collect all floatable contamination. The water next enters a two-stage septic system.

The septic system produces valuable fertilizer for the agrarian community and treats the water like a trickling filter. The crops growing in the wetland further polish and clean the treated water. The effluent of the wetland is sufficiently clean to meet the standards for irrigation. In essence, the system reuses all of the water that enters the home.
We have a great head start on this Global Grant. We will be able to use the community assessment that AdP produced for the potable water Global Grant. Also, we have the census and all the homes tied into “mWater”.
The World Health Organization found investments in sanitation are more cost-effective than potable water!! They are a great team: Water and sanitation address different but related pathways of disease: Sanitation primarily breaks the fecal-oral route of disease transmission, preventing pathogens from waste contaminating our environment and bodies. Safe water ensures that the water we consume and use for hygiene doesn’t introduce harmful contaminants directly.

One can undermine the benefits of the other: You can have a clean water source, but without proper sanitation, that water can easily become contaminated, especially at the household level. Conversely, even with good sanitation, a lack of clean water hinders basic hygiene practices like handwashing, which are essential for preventing the spread of disease.

Background on Vista Hermosa
Vista Hermosa is located 2.5 km from the municipal capital, 23 km from the departmental capital, and 150 km from the capital city of Guatemala. Vista Hermosa can be accessed through Pamezabal and the center of Santa Lucia Utatlán. Corn, Beans, and Flowers are the main sources of income.
Proposed Project
The community has agreed to take the lead on the project and provide all of the unskilled labor. The residents have agreed to provide rights of way for the expanded distribution pipeline. The project will also build another wastewater treatment system for the school.
The total cost still needed is less than US$50,000.
